Christoburg , Claudius , Erasmia , Generaal Kemp Heuwel , Glen Lauriston , Hennopsrivier , Laudium , Radio Uitkyk , Thaba Tswane , Valhalla , Vlakplaas
Amberfield , Amberfield Crest , Amberfield Valley , Arundo Estate , Blue Valley Golf Estate , Brookelands Lifestyle Estate , Brooklands Lifestyle Estate , Celtisdal , Copperleaf Golf and Country Estate , Eldo Meadows , Eldo View , Eldoglen , Eldopark , Eldoraigne , Gerhardsville , Heuweloord , Heuwelsig Estate , Knoppieslaagte , Kosmosdal , Laezonia AH , Mnandi AH , Monavoni , Olievenhoutbos , Raslouw , Raslouw AH , Raslouw Gardens , Raslouw Glen , Raslouw Manor , Rooihuiskraal , Rooihuiskraal North , Rua Vista , Samrand Business Park , Savanna Hills Estate , Silver Stone Country Estate , Stone Ridge , Summerfields Estate , Sunderland Ridge , Thatchfield , Thatchfield Gardens , Thatchfield Glen , Thatchfield Hills Estate , The Reeds , Thorn Field Estate , Timsrand AH , Valley View Estate , Wierda Glen , Wierdaglen Estate , Wierdapark
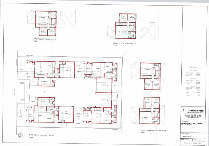
Prime Development Stand for Sale in Hennopspark – Approved Plans for 4 Units
An exceptional opportunity awaits in the heart of Hennopspark, Centurion! This well-located stand is offered FOR SALE with approved building plans for 4 residential units, making it ideal for developers, investors, or buyers looking to build their dream home.
Perfectly positioned close to both a primary school and high school, and just a short drive from Centurion Mall, Gautrain access, major routes, and all essential amenities, this stand offers outstanding convenience and lifestyle appeal.
The approved plans allow for the development of four modern double-storey homes, maximizing the value of the land. Alternatively, if you prefer, the stand is large enough to build one spacious single home, making it a versatile option to suit your vision.
Whether you’re a developer looking for your next project or a buyer wanting to build in a prime area, this stand truly offers endless possibilities.